Na sprzedaż nowe, świeżo wykończone i gotowe do wprowadzenia, trzypokojowe mieszkanie o powierzchni 58,06 m².
Nieruchomość położona na trzecim piętrze nowoczesnego budynku z 2025 roku.
To słoneczne wnętrze z widokiem na zieleń, zapewniające poczucie prywatności i spokoju, idealne do komfortowego życia.
Mieszkanie zostało zaprojektowane tak, aby wykorzystać każdy centymetr powierzchni. Wykończone w wysokim standardzie, z dbałością o detale.
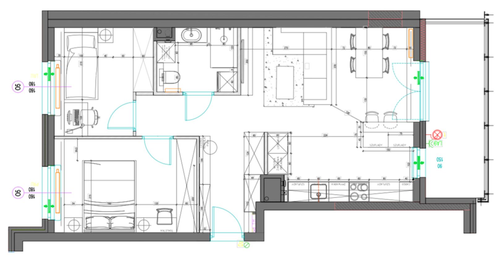
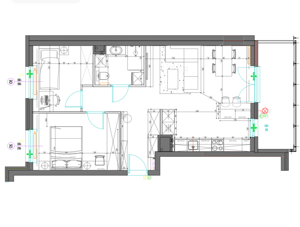
UKŁAD MIESZKANIA:
– salon z aneksem kuchennym – 23,53 m²
– pokój 1 – 9,04m²
– pokój 2 – 11,71 m2
– łazienka – 4,35 m²
– przedpokój – 7,50 m²
– balkon z widokiem na zieleń – 9,04 m²
Wnętrze zostało wykończone pod klucz z wyjątkową dbałością o detale oraz przy użyciu materiałów wysokiej jakości.
Zastosowano między innymi:
– dębową deskę
– sprzęt AGD marki Samsung,
– meble oraz zabudowy wykonane na wymiar przez stolarza
– stylowe oświetlenie,
– wysokiej klasy armaturę,
– klimatyzację
Całość tworzy spójną, elegancką i nowoczesną przestrzeń, gotową do wprowadzenia bez jakichkolwiek dodatkowych nakładów finansowych.
To wszystko stanowi nowoczesne wnętrze, w którym każdy może poczuć się komfortowo.
INFORMACJE DODATKOWE:
Sprzedaż na zasadzie cesji umowy deweloperskiej.
Brak prowizji.
Mieszkanie jest w pełni wyposażone– sprzęt AGD i wszystkie meble – wszystko wliczone w cenę nieruchomości, bez żadnych dodatkowych opłat.
Do lokalu przynależą 2 miejsca parkingowe w garażu podziemnym- na platformie, dostępne za dodatkową opłatą w kwocie 80 000 zł.
Jeśli zakup tej nieruchomości wiąże się ze sprzedażą innej, to bezpiecznie przeprowadzę Cię przez ten proces.
Zapraszam do kontaktu i na prezentację.
Julia Lidzbarska
Ekspert ds. nieruchomości, licencja zawodowa 30430.
739070103
j.lidzbarska@jdestate.pl








































